Rustico in vendita

Bene Vagienna, Frazione San Luigi - San Luigi
€ 69.000
7 locali 7 locali
200 Mq 200 Mq
2 bagni 2 bagni

Rustico in vendita

Bene Vagienna, Frazione San Luigi - San Luigi

Descrizione annuncio

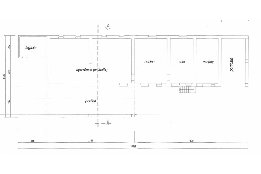
Bene Vagienna. In Frazione San Luigi proponiamo in vendita casa da ristrutturare con un ampio cortile pertinenziale completamente cintata.

La soluzione si propone allo stato attuale non abitabile, esente imu in questo momento, ma con gli oneri di urbanizzazione, predisposizione degli allacciamenti per quanto riguarda gli impianti elettrici, sistema fognario comunale, acqua potabile e quant'altro già pagati.

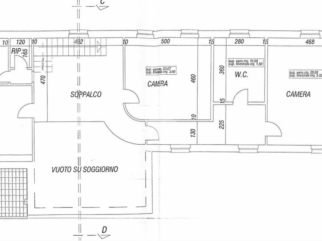
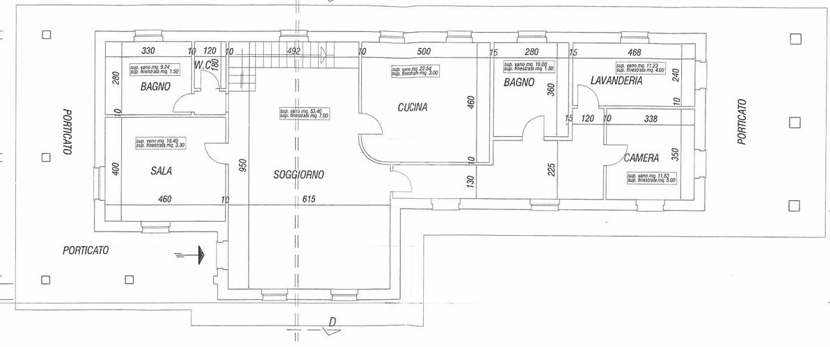
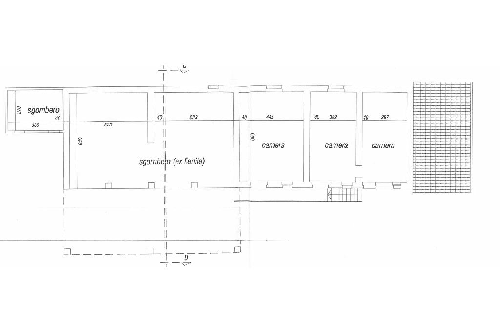
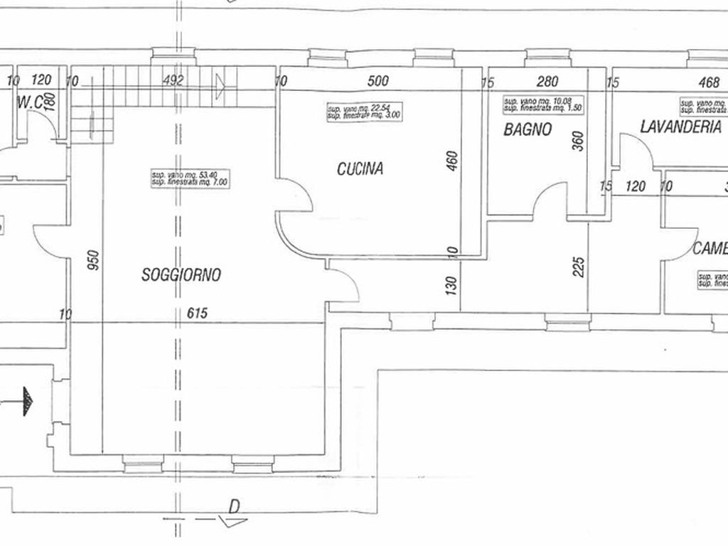
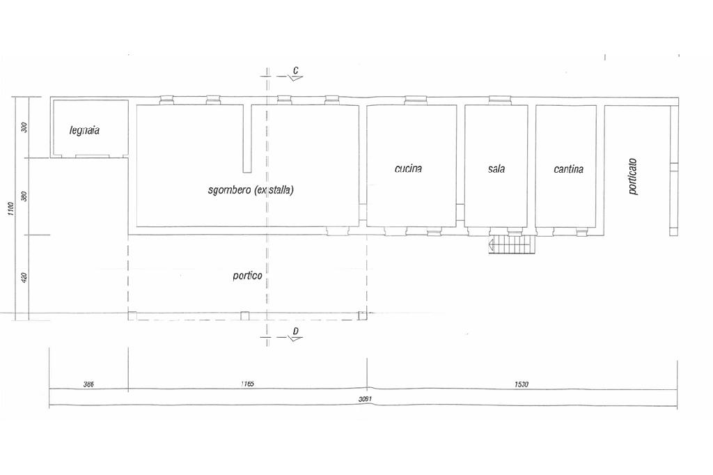
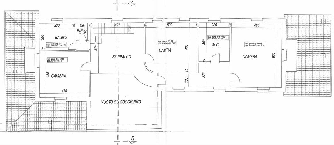
Grazie all'intervento di una ristrutturazione si può recuperare la metrature e creare una soluzione che si disponga su due livelli fuori terra, con un ampia zona giorno al pian terreno, una cucina abitabile, uno o due bagni in base alle proprie esigenze e una camera da letto, più il locale caldaio/centrale termica. Al primo piano dove si accede attraverso la scala interna è possibile ricreare fino a tre camere da letto matrimoniali e due bagni più un ampia zona comune di quest'ultime.

L'abitazione potrà avere una metratura totale di circa 200 mq ed il lotto per intero una superficie totale di circa 2.300 mq.

La soluzione gode di un ottima vista panoramica che da anche la possibilità di avere una buona luminosita in tutti i locali dell'abitazione.

Ogni agenzia ha un proprio titolare ed è autonoma. - Le presenti informazioni non costituiscono elemento contrattuale.

Mostra tutto

Nelle vicinanze

Scuole Scuole
Scuola Elementare
2,2 Km
Farmacia Farmacia
Farmacia
2,1 Km
Supermercati Supermercati
OK Market
2,2 Km
Negozi Negozi
La Boutique della Sposa
2,0 Km
Panetteria
2,0 Km
Non solo pane
2,1 Km
Extro' Moda
2,3 Km
Baby & Company
2,4 Km
Bar Bar
Non solo bar
1,8 Km
Lo Spigolo
2,0 Km
New Bar
2,1 Km
Caffetteria Ravera
2,3 Km
Caffè Portici
2,4 Km
Ristoranti Ristoranti
Trattoria La Fasenda
690 m
Pizzeria ristorante "Parallelo 58"
970 m
La Trifula
1,4 Km
La Vigna del Maestro
1,4 Km
Trattoria Fieramosca
2,2 Km
Mostra tutto

Caratteristiche

Rif.:
61100839
Piano:
1 di 2 (Piano su più livelli)
Terrazzi:
1
Camere da letto:
4
Arredamento:
Assente
Condizionamento:
Assente
Mostra tutto
Prezzo Prezzo
€ 69.000
Rata mutuo Rata mutuo
€ 327 / mese
Proponi il tuo prezzoProponi il tuo prezzo

Classe Energetica

Questo immobile è esente da classe energetica
Anno di costruzione:
1900
Riscaldamento:
Assente

Ti interessa visionare l'immobile?

Fissa un appuntamento  Fissa un appuntamento

Richiedi informazioni

Clicca su Leggi per aprire l'informativa
* Questi campi sono obbligatori

Calcola il tuo mutuo

Semplice e senza impegno
Anticipo

( % )
Mutuo

( % )

pochi semplici passi

inserisci i tuoi dati
Questionario completato
Grazie per aver richiesto un appuntamento senza impegno con un nostro Consulente del Credito e Assicurativo.

Hai inserito correttamente tutti i dati necessari e a breve riceverai una e-mail con un link da convalidare per inviare i tuoi dati.
Affiliato
Studio Fossano Immobiliare Sas
Via Cavour, 55 12045 Fossano (CN)

Il nostro staff


  • Sofia Berra
    Coordinatrice

  • Massimo Bertolone
    Affiliato

  • Alessia Ciriello
    Collaboratrice

  • Giovanni Battista Fissore
    Affiliato
Via Cavour, 55 12045 Fossano (CN)
Zona: Fossano
Mostra su mappa
Orari: Dal Lunedi al Venerdì 09:00 - 12:30 / 14:30 - 19:30 Sabato 09:00 - 12:30 / 14:30 - 18:00
Affiliato
Studio Fossano Immobiliare Sas
Via Cavour, 55 12045 Fossano (CN)

2026 Tecnocasa Franchising S.p.A. - P. IVA 08365160152 - Via Monte Bianco 60/A 20089 Rozzano (MI). Ogni agenzia ha un proprio titolare ed è autonoma. Privacy policy | Policy utilizzo | Cookie policy