Bilocale in vendita

Fossano, Via Roma
€ 69.000
2 locali 2 locali
57 Mq 57 Mq
1 bagno 1 bagno

Bilocale in vendita

Fossano, Via Roma

Descrizione annuncio

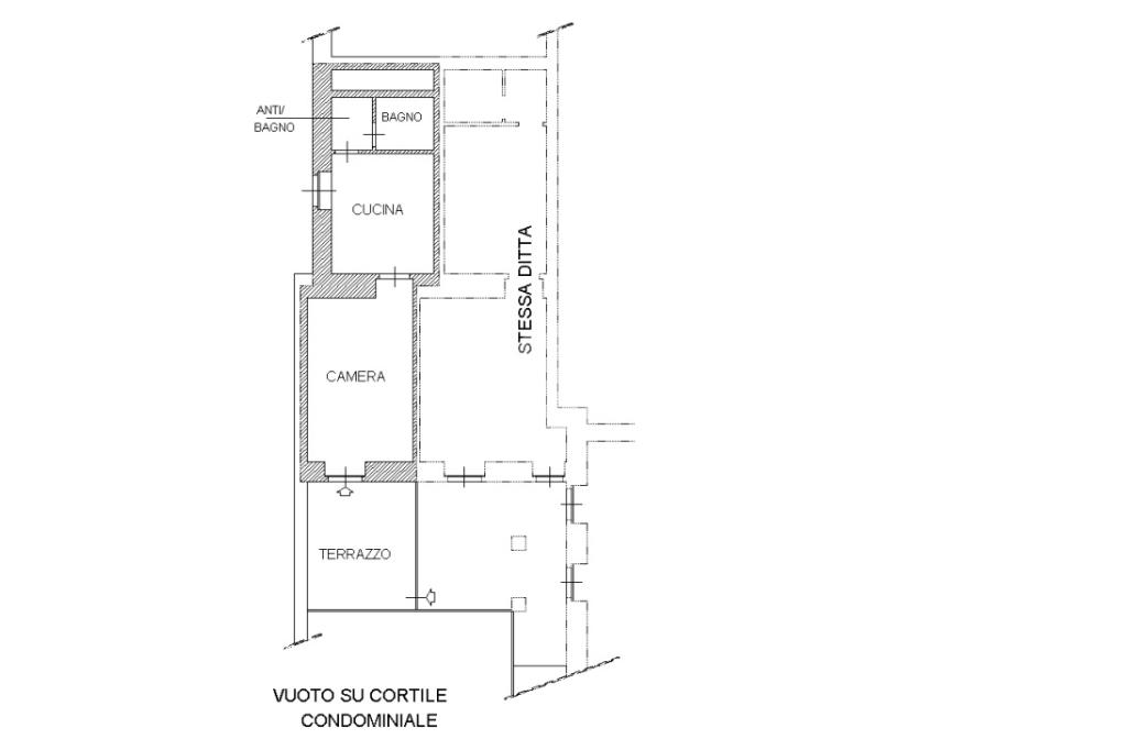
Nel cuore del centro storico di Fossano, proponiamo un bilocale d'epoca, situato al primo piano di un edificio risalente al 1800. Con una superficie di 57 mq, l'appartamento offre un ambiente accogliente e funzionale, ideale per chi cerca una soluzione abitativa in una posizione privilegiata. Il bilocale è composto da due locali ben distribuiti, che permettono di sfruttare al meglio ogni spazio. Uno dei punti di forza è il terrazzo, perfetto per momenti di relax all'aperto. L'immobile è dotato di impianto autonomo, garantendo così una gestione efficiente dei consumi. La posizione centrale consente di vivere appieno la vivacità del centro storico, con la comodità di avere tutti i servizi a portata di mano. Questa proprietà rappresenta un'opportunità unica per chi desidera immergersi nell'atmosfera storica di Fossano, senza rinunciare al comfort moderno.

Attualmente locato con regolare contratto di locazione scadente il 30.09.2027.

C'è la possibilità di acquistare anche l'alloggio confinante alla medesima cifra è composizione interna molto similare, da questo vi è possobile ricavare un unica unità composta da 4 vani con doppio servizio e terrazzo completamente privato.

Ogni agenzia ha un proprio titolare ed è autonoma. - Le presenti informazioni e render illustrativi con costituiscono elemento contrattuale.

Mostra tutto

Nelle vicinanze

Trasporto pubblico Trasporto pubblico
stazione di Fossano
stazione di Fossano
580 m
Via Roma
Via Roma
100 m
Fossano (San Giuseppe)
Fossano (San Giuseppe)
340 m
Scuole Scuole
Scuola Media Sacco Boetto Paglieri
70 m
Scuola Elementare Italo Calvino
150 m
Scuola Elementare Luigi Einaudi
350 m
Liceo "G.Ancina"
350 m
Istituito Salesiano
470 m
Farmacia Farmacia
Farmacia Abrate
160 m
Farmacia Cumino
160 m
Farmacia
220 m
Farmacia Rottondo
380 m
Farmacia Municipale 2
500 m
Ospedali Ospedali
Ospedale Maggiore
150 m
Poliambulatorio Ospedale Fossano
170 m
Croce Bianca
690 m
Ospedali
830 m
Supermercati Supermercati
Carrefour Express
380 m
Presto Fresco
500 m
Penny
610 m
Mercatò
610 m
EuroSpin
810 m
Negozi Negozi
Abbigliamento Bergese
290 m
Panificio Vecchio Forno
290 m
United Colors of Benetton
310 m
Negozi
560 m
A modo mio
600 m
Bar Bar
Caffé Fossanese
60 m
Oscar
130 m
Bar
170 m
Bar Xò sala giochi
390 m
Caffetteria Marconi
440 m
Ristoranti Ristoranti
Pizzeria Medori
210 m
Kinso
300 m
Ristoranti
320 m
Pizzeria Quisisana
330 m
Antica Osteria "Da Pier"
380 m
Mostra tutto

Caratteristiche

Rif.:
61165930
Piano:
1 di 3 (Piano medio)
Balconi:
1
Terrazzi:
1
Camere da letto:
1
Arredamento:
Parziale
Mostra tutto
Prezzo Prezzo
€ 69.000
Rata mutuo Rata mutuo
€ 325 / mese
Spese annue Spese annue
€ 200
Proponi il tuo prezzoProponi il tuo prezzo
Immobile valutato con T·Valuta

Classe Energetica

E
E
E
E
E
E
E
E
E
EP globale non rinnovabile:
190.94 kW h/m² anno
EP globale rinnovabile:
2.22 kW h/m² anno
EP invernale del fabbricato:
EP estiva del fabbricato:
Anno di costruzione:
1800
Riscaldamento:
Autonomo
Tipo impianto:
A radiatori
Tipo alimentazione:
Metano

Ti interessa visionare l'immobile?

Fissa un appuntamento  Fissa un appuntamento

Richiedi informazioni

Clicca su Leggi per aprire l'informativa
* Questi campi sono obbligatori

Calcola il tuo mutuo

Semplice e senza impegno
Anticipo

( % )
Mutuo

( % )

pochi semplici passi

inserisci i tuoi dati
Questionario completato
Grazie per aver richiesto un appuntamento senza impegno con un nostro Consulente del Credito e Assicurativo.

Hai inserito correttamente tutti i dati necessari e a breve riceverai una e-mail con un link da convalidare per inviare i tuoi dati.
Affiliato
Studio Fossano Immobiliare Sas
Via Cavour, 55 12045 Fossano (CN)

Il nostro staff


  • Sofia Berra
    Coordinatrice

  • Massimo Bertolone
    Affiliato

  • Giovanni Battista Fissore
    Affiliato
Via Cavour, 55 12045 Fossano (CN)
Zona: Fossano
Mostra su mappa
Orari: Dal Lunedi al Venerdì 09:00 - 12:30 / 14:30 - 19:30 Sabato 09:00 - 12:30 / 14:30 - 18:00
Affiliato
Studio Fossano Immobiliare Sas
Via Cavour, 55 12045 Fossano (CN)

2026 Tecnocasa Franchising S.p.A. - P. IVA 08365160152 - Via Monte Bianco 60/A 20089 Rozzano (MI). Ogni agenzia ha un proprio titolare ed è autonoma. Privacy policy | Policy utilizzo | Cookie policy