Casa indipendente in vendita

Trinità, Via Roma
€ 179.000
7 locali 7 locali
199 Mq 199 Mq
3 bagni 3 bagni

Casa indipendente in vendita

Trinità, Via Roma

Descrizione annuncio

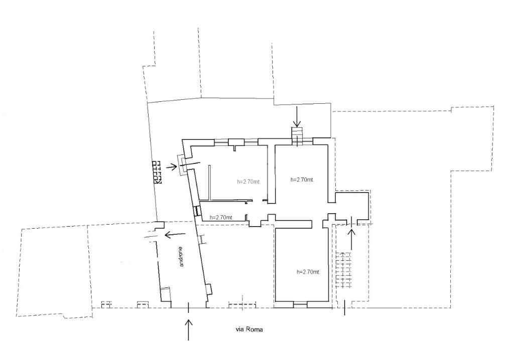
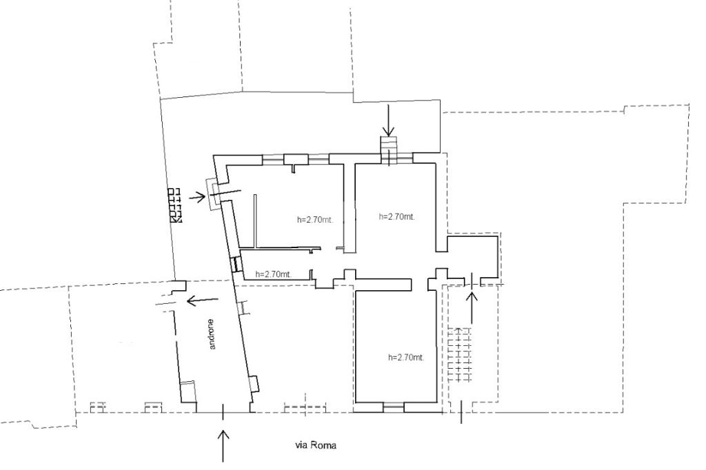
TRINITÀ. In zona centrale e comoda ai servizi proponiamo in vendita casa plurifamiliare. La soluzione è composta da tre unità immobiliari e si distribuisce su 2 livelli fuori terra.

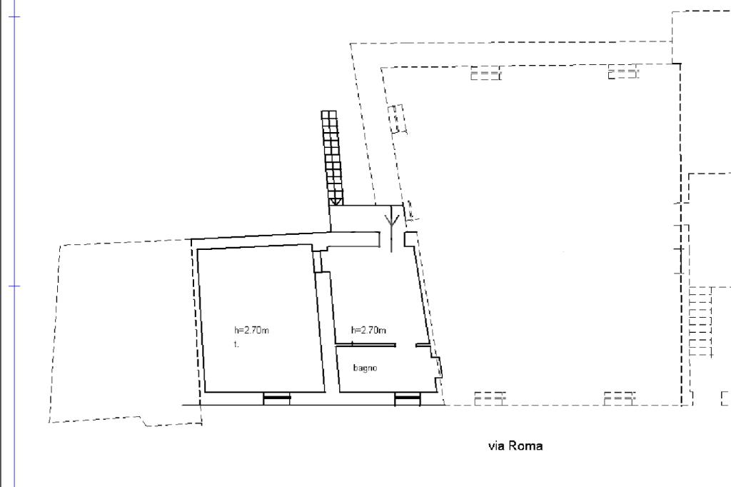
La prima unità è un locale adibito ad ufficio, completamente indipendente dalle altre unità sia come accesso, direttamente da Via Roma, che come utenze. L' ambiente è reso luminoso dall' ampia vetrina ed è dotato di bagno.

La seconda unità, prima come abitazione si sviluppa tutta sul piano terra con accesso pedonale molteplice e sfogo sul cortile pertinenziale.

L' accesso avviene sul disimpegno che divide la zona giorno dalla zona notte, da quest'ultima trovano spazio due camere da letto matrimoniali entrambe rese luminose dalle ampie finestre e dal bagno dotato di box doccia. Tramite un secondo disimpegno, si accede alla zona giorno formata dal cucinino e da un' ampio soggiorno che da sfogo sul terrazzo esterno, idale per pranzi all' aperto o momenti di relax.

La terza unità, seconda come abitazione, vi si accede direttamente dall'interno cortile attraverso una scala esterna che conduce fino al terrazzo dell'alloggio, prende spazio un bilocale con ingresso diretto sulla zona giorno formata da sala da pranzo e cucina, un bagno finestrato dotato di box doccia e un' ampia camera da letto matrimoniale.

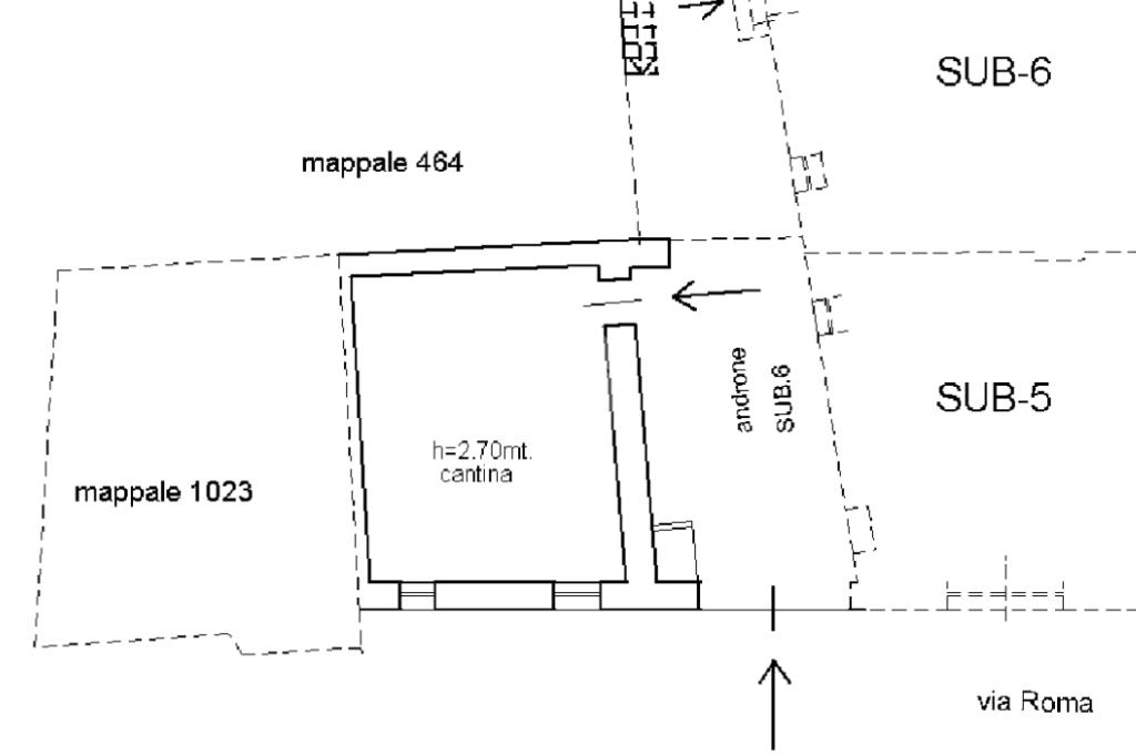
Ultimano l' intera proprietà l' ampio giardino recintato e la spaziosa cantina al piano terra.

Tutte è tre le unità sono autonome l'una dall'altra come impianto di riscaldamento, luce e acqua.

Sono stati fatti vari lavori di ristrutturazione negli anni, tra i più importanti nel 2022, dove è stato rifatto completamente il tetto.

Ogni agenzia ha un proprio titolare ed è autonoma. - Le presenti informazioni non costituiscono elemento contrattuale.

Mostra tutto

Nelle vicinanze

Trasporto pubblico Trasporto pubblico
Trinità Bene Vagienna
Trinità Bene Vagienna
440 m
Trasporto pubblico
2,8 Km
Scuole Scuole
Scuole
190 m
Scuola secondaria di primo grado "Tassone Battista"
2,8 Km
Scuola primaria di Sant'Albano di Stura
2,8 Km
Farmacia Farmacia
Farmacia
690 m
Farmacia Giletta
3,0 Km
Supermercati Supermercati
U2
130 m
Negozi Negozi
Dolce Mondo
2,7 Km
da Betto
2,9 Km
L'antico Forno
3,0 Km
Ristoranti Ristoranti
pizzeria da Davide
2,8 Km
Mostra tutto

Caratteristiche

Rif.:
61100787
Piano:
2 di 2 (Piano su più livelli)
Box:
1
Posti auto:
3
Balconi:
1
Terrazzi:
2
Mostra tutto
Prezzo Prezzo
€ 179.000
Rata mutuo Rata mutuo
€ 844 / mese
Spese annue Spese annue
€ 100
Proponi il tuo prezzoProponi il tuo prezzo
Immobile valutato con T·Valuta

Classe Energetica

E
E
E
E
E
E
E
E
E
EP globale non rinnovabile:
159.26 kW h/m² anno
EP globale rinnovabile:
2.75 kW h/m² anno
EP invernale del fabbricato:
EP estiva del fabbricato:
Anno di costruzione:
1900
Riscaldamento:
Autonomo
Tipo impianto:
A radiatori
Tipo alimentazione:
Metano

Ti interessa visionare l'immobile?

Fissa un appuntamento  Fissa un appuntamento

Richiedi informazioni

Clicca su Leggi per aprire l'informativa
* Questi campi sono obbligatori

Calcola il tuo mutuo

Semplice e senza impegno
Anticipo

( % )
Mutuo

( % )

pochi semplici passi

inserisci i tuoi dati
Questionario completato
Grazie per aver richiesto un appuntamento senza impegno con un nostro Consulente del Credito e Assicurativo.

Hai inserito correttamente tutti i dati necessari e a breve riceverai una e-mail con un link da convalidare per inviare i tuoi dati.
Affiliato
Studio Fossano Immobiliare Sas
Via Cavour, 55 12045 Fossano (CN)

Il nostro staff


  • Sofia Berra
    Coordinatrice

  • Massimo Bertolone
    Affiliato

  • Alessia Ciriello
    Collaboratrice

  • Giovanni Battista Fissore
    Affiliato
Via Cavour, 55 12045 Fossano (CN)
Zona: Fossano
Mostra su mappa
Orari: Dal Lunedi al Venerdì 09:00 - 12:30 / 14:30 - 19:30 Sabato 09:00 - 12:30 / 14:30 - 18:00
Affiliato
Studio Fossano Immobiliare Sas
Via Cavour, 55 12045 Fossano (CN)

2026 Tecnocasa Franchising S.p.A. - P. IVA 08365160152 - Via Monte Bianco 60/A 20089 Rozzano (MI). Ogni agenzia ha un proprio titolare ed è autonoma. Privacy policy | Policy utilizzo | Cookie policy